236㎡现代中式风,3大整装亮点你模仿不来

2021-03-25

图片

▲1楼设计效果图


案例介绍

楼盘地址:红谷十二庭52栋叠墅

户型:地面2层,地下1层

面积:236平方(不含前后院)

风格:现代中式

基装24.3万(含定制8.3万)

主材造价14.5万含L&D瓷砖、金牌橱柜、金迪木门、生活家多层实木地板、箭牌卫浴、科勒卫浴、楚楚吊顶、伊诺开关)

家电造价6.5万(含海尔中央空调,卡萨帝空气能热水器,卡萨帝冰箱和洗衣机)

定制造价8.3万(含电视沙发护墙板、木柱、装饰柜、鞋柜、酒柜、衣柜、书桌等,板材花色:哥伦比亚橡木、鼹鼠灰、刀砍橡木

软装造价5.6万(含全房墙布、灯具、装饰品、地毯、负一楼防潮家具)


户型分析



图片
图片

▲-1楼原始户平面布置图



图片
图片

▲1楼原始户平面布置图



图片
图片

▲2楼原始户平面布置图


客情分析

男业主夏总,女业主万老师,是通过老业主介绍来找我们装修的。业主夫妇平常工作很忙,只有周末有些空闲时间,但要送孩子去上各种兴趣班,并没有太多时间管装修。


因此,想找省心省事,好口碑的品牌装修公司。经过实地参观了解,业主对我们整装1+6+N服务非常满意。


服务过程

一开始,业主很纠结做哪种装修风格。男业主喜欢传统中式,女业主则担心太过老气,毕竟也才80后。经过多次沟通,设计师结合男女业主的需求,将方案定稿为时尚轻快又有韵味的现代轻奢中式,结果方案大受欢迎,业主一锤定音,就它了。


在装修过程中,业主去工地的时间比较少,材料到货安装及进度把控都是我们在管。“装修两个多月后,业主才第一次和工人打照面,工人也不认识业主,还以为是进来参观装修的邻居”,可见业主对我们非常放心,评价我们是“价美质优”,设计师,监理及施工人员都热情认真又很负责。


完工后,业主给我们送来感谢锦旗。


图片

▲男业主夏总(右)与设计师王华(左)


差异化优势


1. 利用定制产品增加储物空间


①入户空间外扩约2米,增加室内空间,更好地打造进门鞋柜及酒柜。


图片
图片

②主卧房间跨度较大,在床对面再定制一整排衣柜,兼具电视柜、书桌兼梳妆台设计,增加储物空间。

图片
图片

图片


③儿童房需要定制衣柜、书桌书柜,还要色彩活泼带点童趣。


图片

2.定制休闲茶室与客厅虚实结合

电视背景墙为虚实通透设计,令狭长的空间瞬间拉宽不显压抑,增强与客厅的互动。定制板材全房协调统一,电视背景墙面装饰及沙发背景墙线条,均为同一板材花色,整体呼应,美观大气。

图片
图片
图片

3. 各部门一体化服务无缝衔接


电视背景墙在施工时,有几点问题需要各部门紧密配合才能完美呈现:①泥工施工②木工打底厚度③定制护墙板与木柱门套衔接。


设计师和监理配合,把各部门人员(主材部及主材商家、定制部)全部约到工地现场对接。由于业主在忙工作未到场,在现场确认后,设计师再发视频,一一讲解给业主听,确认方案可行后再施工,确保施工衔接无纰漏,整装效果完美呈现。


这就是我们整装定制一体化服务优势:有问题可以无缝衔接高效解决(因为我们同属一家公司,约束力强、配合更到位)。

选择我们装修,就是选择了真正的省心省事省时省钱。


利他优势


1.取消主卫优化空间布局


主卧原始结构一般,原有卫生间挡在阳台门口,导致房内采光偏弱。在设计改造时,设计师考虑到二楼三个卧室相邻,建议主卫保留公卫,余出空间可在主卧增加一个独立的衣帽间。再根据空间使用子母门,方便实用大气。


图片
图片
图片


打掉主卧阳台推拉门,抬高地面做休闲阳台。房门外的洗晒阳台也是独立区域,使主卧空间动线分明,舒适轻快。


图片

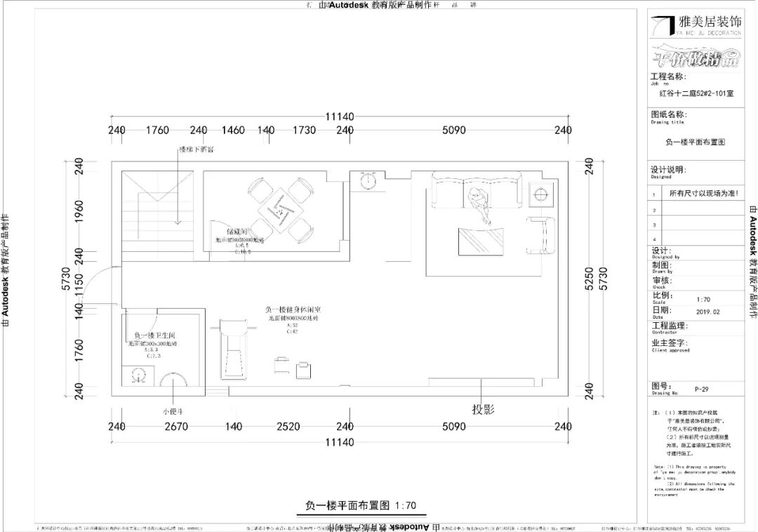
2.地下室因地制宜防火防潮


地下室空间以休闲功能为主:拥有家庭聚会客厅、娱乐健身等功能,像一个小型的“轰趴馆”。但地下室相对比较潮湿,只有一个天窗采光。

图片

在装修选材时,首要考虑防潮。墙面用砖铺贴,顶面采取铝扣板,不影响美观且防火防潮。

图片
图片

▲一镜到底欣赏全房设计亮点视频