绿地悦城145㎡简中北欧混搭风,7处改造让家好住N倍

2021-06-07
图片


设计师:曹汉华   

监理:徐球平

楼盘:绿地悦城

风格:简中+北欧混搭

面积:145㎡

整装造价:14.5万(含定制柜6万)

主材:9.5万

软装:1.2万

家电:4万

图片

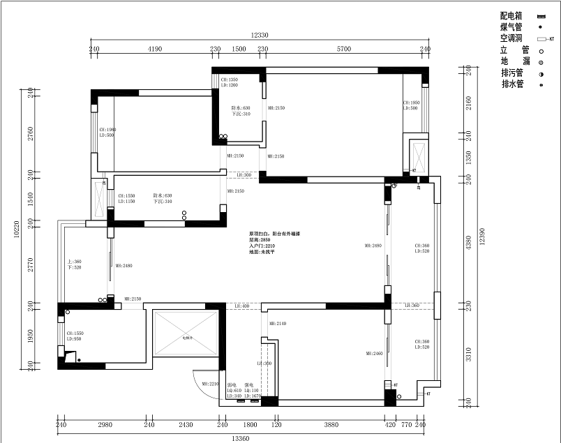
▲原始户型图

图片

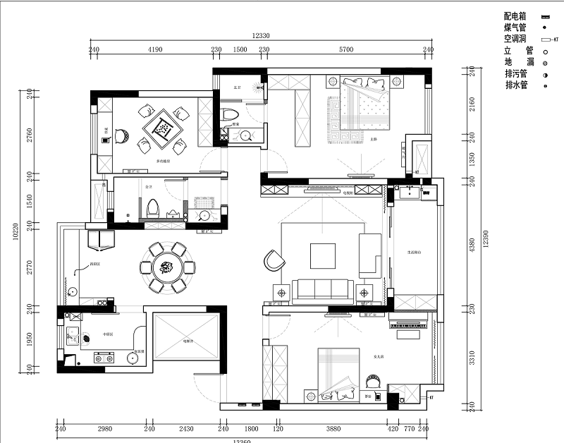
▲平面布置图


图片

7大改造体现整装利他优势

图片

1. 入户玄关设计鞋柜区,拆除原有鞋柜背部墙体,跟女儿房卧室衣柜做成背靠背组合柜,既节省空间又实用。

玄关吊顶采用反灯槽设计,两边灯光全部铺满两面墙体,既美观又温馨放松。


图片

图片图片


2. 此户型有双阳台,南阳台过长,后期在设计上一分为二,一部分作为生活阳台,另一部分纳入到女儿房,使女儿房空间扩大。


女儿房内就着南阳台及空调外机空间定制衣柜,在空调管线暗埋处理上,体现了雅美居整装服务优势:家电部工作人员协同设计师在开工时进行现场定位,将1.1米长的挂式空调PVC套管藏进柜体背板后,提前预留空调线位置,使空间更简洁美观。


图片

图片


3. 厨房空间非常紧凑,拆改北阳台做成西厨区并入餐厅,容纳烤箱、饮水机、冰箱等电器,使整个居室空间既通透又实用。


图片

图片


4. 餐厅净空2.7米,进深空间不是很宽敞。业主想做餐边柜又想放圆桌。设计师巧妙拆除东面公卫墙体中间的砖墙,嵌入一组定制餐边柜,一举两得。


图片

图片
图片

5. 客厅电视背景墙采用组合柜设计,两边做装饰收纳柜,中间背景墙用岩板砖做造型,电视矮柜用大理石铺设台面,收纳强大又美观大气。


电视墙同时拥有电视柜、背景墙、收纳柜、书柜、装饰柜、电视机及投影幕布。真正做到鱼与熊掌同时兼得。


图片

图片

图片


6. 主卧设置7字型衣帽间,避开主卫门直冲主卧床,加大卧室私密性,一举多得。

衣帽间朝南开门,北面朝卫生间方向的背板非常注重细节:通篇采取隐形门设计,避免缝隙不均匀影响美观,改造后非常匀称,就像一组L型双面柜,完美拯救强迫症患者对细节的“吹毛求疵”。


图片

图片

图片


7. 两个卫生间改造都是亮点,公卫利用立管进行隔墙,做成区域分割,外部为洗漱,里面为干区跟湿区,使用起来互不影响。


主卫采用立管空间做壁龛用来收纳及置物,刚好同时放下浴室柜且没有卫生死角。


图片
图片

图片

3大整装服务亮点体现差异化优势

图片

1. 因餐厅需内嵌一组定制酒柜,设计师对公卫墙体做了掏空改造。为避免后期柜体出现问题,在泥工施工环节,特别要求工人在墙体底部做好挡水反梁后,再砌墙并做丙纶防水加固,确保后期滴水不漏。


这个重点施工项目,由监理多次监督并验收,出现瑕疵立马整改,一点都不含糊,恪守底线,最终保质保量完成,这是我们雅美居基装+设计+定制无缝衔接的优势。


图片


2. 南面生活阳台吊柜的侧封板原先尺寸凸出1公分且压砖,不好看。通过监理与定制部的无缝衔接,将侧封板尺寸调到和墙体齐平,更美观。


图片

▲改造前后对比

图片


3. 北阳台改造的西厨空间的台面处理,也体现了我们的差异化优势:封窗和台面中间有镂空,设计师、监理和铝合金窗户商家、主材商家在现场对接,将西厨挡水条直接顶在铝合金方料上,通过以下4个步骤:


①监理现场打水平线②地面贴砖50mm③确定橱柜离地高度820mm④铝合金放横料在870mm高度。


确保后续不存在卫生死角,台面与封窗、橱柜衔接严丝合缝。


图片


图片

完工后,业主给公司发来感谢信!

本案业主袁先生,是之前悦城D区老业主的同事,D区老客户家完工效果非常棒,对我们非常满意,一直极力推荐我们。


接触袁先生后,通过我们一系列的深度服务:量房、看方案、看工地、带看工厂、讲解报价等等,最终也选定我们装修。


业主非常认可我们整装各项优势及超高性价比的特性,从定制、主材、家电再到软装产品,全套在公司落定。

图片


图片


▲一镜到底欣赏全房设计亮点视频


图片

▲扫码观看本案全景漫游照片


以上为斑德宅配为大家带来的案例分享

如您喜欢本案设计,还请转发传播

如您需要装修或定制家具

欢迎与我们联系:400-066-0689

注明微信报名客户,到店有惊喜礼品赠送