98㎡三居室,改造巧解户型难题,刚需婚房必看!

2021-03-14

案例介绍:

楼盘:力高滨湖国际2栋1单元

面积:98㎡

户型:三室两厅1厨2卫

风格:现代极简

设计师:龚志坚

监理:刘火军

定制设计师:叶帮龙

整装造价:

基装:9万(含定制2.6万)

主材:2.7万(含橱柜、地板、地砖、地板)

家电:7000元(空调风管机)

▲下拉看全部介绍


图片

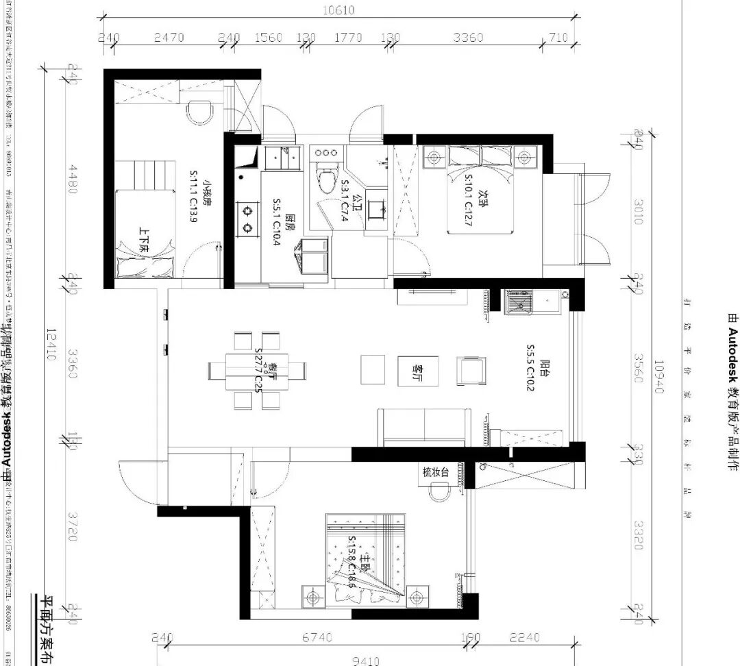
▲户型图VS平面布置图

图片

▲实景图还原度高


设计说明:

本案是一套婚房,业主从事房地产行业,对居室的设计效果及装修品质都有较高要求,很讲究细节。

业主在公司选购全套整装产品,确保整套房竣工后的最终预算控制在计划内,全过程非常省心省钱,性价比很高。

最终完工交付的时候,业主对我们十分认可,说一定把我们推荐给身边需要装修的朋友同事。


图片



图片

户型改造


1.主卫并入主卧做成衣柜区


主卧含主卫面积仅13㎡,要同时满足储物洗漱功能难度较大。

考虑到主卧卫生间没有窗户,也没有砌墙留水管,做卫生间最少要留3平方的位置出来。

未免空间过于狭小,设计师取消主卧卫生间,把其纳入主卧做成L型衣柜,实用性增加,空间舒适度也增加不少。

图片
图片


2.巧借过道扩大厨房


厨房很小,冰箱没地方放,放餐厅又很难看,就把进入卫生间的过道挪给厨房。正好可以放冰箱,又不影响过道进出,效果简单大方温馨舒适。


图片
图片


图片

整装设计亮点


1.整装定制板材全房统一


科技木花色用作衣柜、鞋柜、背景墙下面的配色,电视背景墙花色为行云流水。定制产品与全房设计整体搭配协调,板材质感高端大气上档次。


图片

图片

▲客厅及主卧实景


这种全房整体效果呼应衔接的功能,是其他定制品牌做不了的,它要求设计生产施工紧密配合。

而我们雅美居装饰和斑德宅配的三师一体施工无缝对接服务优势,能很好地做到这点,充分满足业主多样化个性化的高要求。


2. 客厅无主灯设计时尚潮流


墙面顶面留白,使空间更通透清爽。无主灯设计让吊顶更高远,不显压抑。简单的造型让全房格调简洁大方上档次。


图片



3. 整装定制电视背景墙,经济实惠效果好


斑德宅配行云流水板材花色是逼真的大理石效果,提升空间档次又节省造价。背景墙与电视柜统一,十分协调。


图片



图片

差异化优势


1.全房统一个性定制

我们的设计方案都是根据业主的要求量身定制的,一体化设计、生产与业主家风格配套的全房木制品,个性又统一。


图片

图片

▲同款板材定制客厅背景墙、电视柜及餐厅柜

图片

▲同款板材定制主卧L型衣柜

图片

▲同款板材定制次卧到顶衣柜

图片

▲同款板材定制衣柜+书桌柜

图片

▲同款板材定制阳台储物柜


2.整装服务系统全面

主材款式对接很方便,后期施工细节的落地能力很强,基本一比一还原效果图。而其他公司设计师要想把控效果,在对接商家、工程、定制的过程中没有这么方便,不可以每个细节都能这么完美的对接到位。


图片
图片
图片

▲全房主材、家电产品全流程衔接


图片

利他优势


1.整装方案搭配全房产品


我们的整装方案,可搭配全套定制,主材,软装,家电产品,且每个品类的产品款式很多,不固定搭配,可灵活选择、不限选不加价不隐藏不增项、组合套购再享折上折优惠


2.装服务环环相扣,省心省力省钱


完工后我问业主:装修您觉得累吗?业主说没有感觉,装修整个过程都不累,只有满满的期待。因为雅美居服务环环相扣,各个环节都衔接好,各项材料都选定好,业主非常省心。


图片

▲业主(右)与设计师合影

▲设计师一镜到底讲解视频