38.8万装修368㎡新中式别墅,装完竟变身424㎡

2021-01-21

图片

图片

▲设计师讲解全房设计亮点


图片

▲扫码观看本案全景漫游照片


图片
正文

本案作品命名为《春华秋实》——春天播种,秋天丰收。

就跟本案业主一样,辛苦奋斗半辈子,最终有一套高品质别墅享受生活。


男业主经商多年,是机械设计专业出身。

事业成功,做事严谨,要求很高。

女业主为人热情开朗,家务干净整洁。

夫妻双方喜欢有格调不过于奢华的装修。


本案立面造型采用中式元素与现代风格糅合的设计,抛弃传统中式繁琐的线雕、层级、花格等素材,避免空间太过厚重。

平面设计运用开放空间的手法。增加人在动线行走的舒适感。



本案两大标志性亮点


1. 厨房6㎡改造成43㎡

原始厨房在1楼,面积只有6㎡,且餐厅与客厅相连,餐厨使用不便。女业主要求把厨房扩大,并将客厅与餐厅分开。设计师把厨房移到负一楼,改成厨餐一体设计,总面积扩大成43㎡。

厨房挪走后,一楼加出一间带衣帽间的客房,方便女业主母亲居住。原有一楼餐厅位置,一半给客房使用,一半改成南面入户茶室,让整个空间功能更丰富齐全。

图片
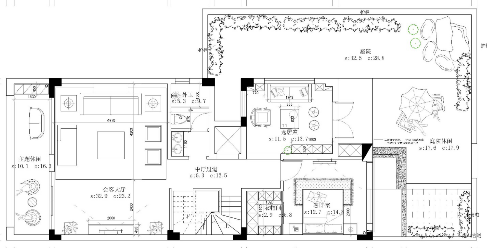
图片











▲全房户型图

图片

▲平面布置图


2. 顶楼单间13㎡改造成30㎡套房

顶楼男孩房原本只有13㎡。对于一套别墅来说,这种房间面积太紧凑。设计师将男孩房外露台现浇顶面扩建到房间内,改造成30㎡带6㎡独立卫生间的套房。现浇完的露台再次改造把原有设备亭,改造成麻将房及室内洗衣房,进一步完善室内居住功能。


客餐厅设计亮点

客餐厅设计亮点

1. 

客厅中式元素与现代元素融为一体:中式塔型吊顶设计运用整装定制板。


图片


2.

电视背景墙采用黑白灰配色,900*1800地砖上墙,采用钢架干挂工艺,新颖配色让中式不再单调。


图片


3.

沙发背景采用护墙板上墙设计,线条完整不拼接,提前设计好长度及接口尺寸,保证现场接口漂亮。


图片


4.

餐厅酒柜使用套柜设计,做出古代钱币H造型。寓意业主生意兴隆、财源广进,赚得盆满钵满。


图片


休闲娱乐区设计亮点


1.

茶室酒柜采用圆形门设计,寓意业主人月两团圆。


图片图片


2.

影音室吊顶的满吊设计,规避灯和投影仪交叠的问题。

大面积的三层中空玻璃增加采光和影音效果。

立面运用定制板,爱马仕橙板材花色。

从地面、墙面延伸至顶面,空间感很强。


图片

图片


楼梯设计亮点


1.

楼梯踏步在施工过程中全部调整高度,达到最佳尺寸。

楼梯整体色调使用黑灰,配合我们的南灰柚木色调,色彩效果更统一。


2.

楼梯扶手玻璃和木质结合,整体更美观、更透亮。


卧室设计亮点

1. 主卧

主卧卫生间面积占比过大,没有衣帽间。利用尖顶现浇出隔层,多出一个带有中岛的衣帽间。满足女主人大量储物需求。


图片

图片


2.女孩房

导入智能灯光、智能窗帘设计,使用更舒适。

利用现浇为房间扩容。加出全房地暖系统以及中央热水设备间,帮助业主节省后期使用费。


图片

图片

图片


健身区设计亮点


图片

图片


生间+室内电梯亮点


本案使用的斑德宅配定制板材花色

1
南灰柚木
图片
2
爱马仕橙
图片
3
中灰亚麻
图片
4
鼹鼠灰
图片
5
白皮纹
图片
6
爵士白
图片



出走半生再归来


择一城一屋

食三餐四季

随意缓慢度日

是大多数人必经的归宿


若是像本案业主一般

身处新中式别墅

或书香墨韵

或烹茶品茗

或高歌一曲

就是对曾奋斗的过往最好的礼赞


愿每一个披星戴月的追梦人

最终都手摘星辰且听风吟

雅美居装饰(集团)

携手子公司“斑德宅配”

始终为您专业规划整体家装

贴心定制美好生活空间

定制家,更般配!