【实景案例】整装15.8万打造120㎡港风三居室

2021-06-07

图片

▲监理、业主、设计师现场合影(从左至右)


楼盘:红谷凯旋1期8栋1单元

户型:三室两厅一厨两卫一阳台

面积:120平方

风格:港式

整装造价:15.8万(含定制5.4万)主材1万

定制产品颜色:南灰柚木系列

设计师:李鹏程(红谷滩设计中心)


图片

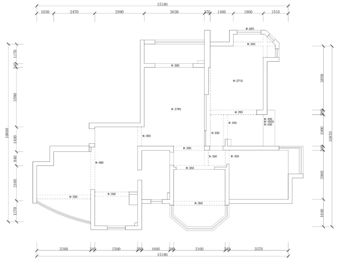
▲原始户型图

图片

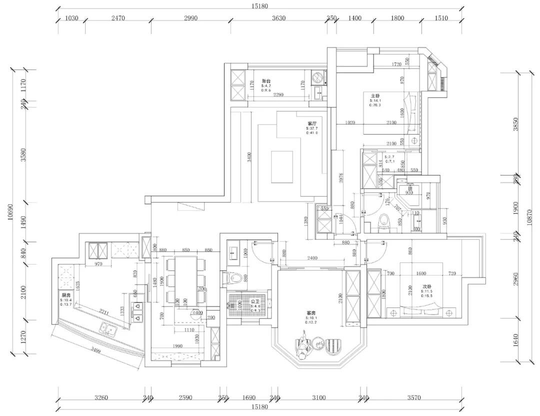
▲平面布置图


设计说明:

本案为婚房,业主喜欢有质感的港式风格,十分重视衣帽间功能,对工期要求非常高。


此案最大的亮点是速度快,各环节服务衔接到位。定制产品对接时间把握得非常好,很多外部定制商家不好处理的细节,公司都处理得非常好。


设计亮点:


图片

餐厨一体设计,抠出书吧+酒吧区


设计师对原入户的厨房和餐厅空间进行改造:把两处空间合二为一,打造出书吧酒吧区。结合定制餐台,让入户空间更加开阔,凸显生活情趣。


图片


对餐厨空间墙面作饰面和镜面处理,整体协调,很有质感。


图片


厨房挪至异形房间,让进门口更显大气。充分利用开发商赠送的空间,并入厨房生活区,确保面积宽敞,功能便捷。


图片


厨房内容纳对开门冰箱、洗碗机、蒸烤箱、中央用水系统、垃圾处理器等家电产品,使该生活区拥有原厨房所不具备的收纳空间,分区合理,功能全面。


图片


图片

入户端景让背景墙更对称立体


入户端景的处理,既让客厅电视墙和沙发墙更对称,也让端景和沙发背景更显立体。不论材质的比较,还是层次的变化,都显得更加丰富。


图片

图片

图片


沙发背景选用了深绿色墙布,与护墙板搭配,起到材质对比、互相提亮的效果,让空间更具视觉冲击力,更沉稳显档次。


图片

图片


图片

改造主卫增加主卧衣帽间


利用客厅护墙板,在过道上再增设一组独立衣柜,补充了收纳空间。


利用主卧过道墙面,实现衣柜、护墙板、全身镜的设计,加上氛围灯光,让空间更有层次,包括立面色彩及装饰材质对比都更加丰富。


图片


主卧借用卫生间区域,打造步入式衣帽间,满足女业主需求。


图片

图片


主卫部分空间借用给衣帽间之后整体空间异形,为了让原本被缩减后的卫生间不显局促,在原有飘窗处设计淋浴房、洗手台,采用连墙壁挂式马桶,空间利用最大化。


图片


衣柜上方为达到更好效果设计灯带,但因为是实体梁比较难实现,过程中想了很多办法,最后定制部在只有3公分留空反光灯槽情况下,将灯带完美安装上去,最终达到预期效果。


图片


在床头把八角窗融入背景墙的设计,既满足了收纳需求,也满足了功能分区需求,让生活更精致。


图片


图片

其他空间实景照片欣赏


图片

图片

图片

图片

▲设计师现场讲解设计亮点视频


图片

▲扫码观看本案全景漫游照片


以上为斑德宅配为大家带来的案例分享

如您喜欢本案设计,还请转发传播

如您需要装修或定制家具

欢迎与我们联系:400-066-0689

注明微信报名客户,到店有惊喜礼品赠送