2㎡卫生间塞浴缸,餐厨一体+满墙电视柜,100㎡用起来像130㎡

2020-11-27

房子无需太大,有温度

有自己喜欢的生活,有爱的人
即使只有百平,也足够惬意舒适
这是业主蔡女士和家人的新居,拒绝花样繁复、造型炫酷的装修风格,他们更希望把新家打造成一个轻松惬意、舒适温馨的空间。
案例简介✔

地址:保利·百合花园
户型:三室两厅
面积:100㎡
风格:现代轻奢
设计师:胡静
整装造价:基装11.7W(含定制5W)+主材4.8W+家电5.7W+软装1W

∆原始结构图


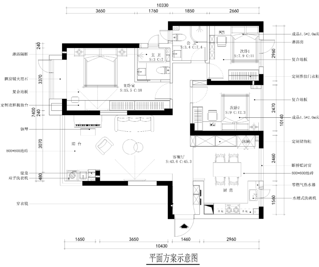
∆平面布置图




户型
改造

①原始厨房狭小,可做收纳空间有限,打掉北阳台实现餐厨一体功能

②儿童房面积较小,门后拆墙榨干每1㎡储物空间,满足孩子所需的储物和学习

③南阳台打通进客厅,瓷砖直接通铺过去,保持南北通透大气

∆效果图1:1还原


差异化竞争优
1.餐厨一体设计
打动业主


业主是通过朋友介绍咨询雅美居的,期间对比了几家公司,胡工的设计方案,让业主看到我们与其他公司的区别;

冰箱与餐边柜的衔接,灯光的搭配,特别是厨房餐厅融为一体的设计,深得业主的心。



厨房纳入北阳台后更加宽敞,采用L型的的橱柜布局,靠墙定制餐边柜+嵌入冰箱设计,增强家人互动性的用餐区就此诞生。




采用三联动推拉玻璃门既能扩大视觉面积,也可以有效阻挡油烟。(下图中推拉门“藏”储物柜边)



2.阳台客厅“一体化”
空间统一,改善采光

拆除阳台移门,瓷砖通铺至阳台,视觉效果瞬间开阔起来,采光充足。

阳台设计暗藏式晾衣架,避免尴尬的同时不影响光线,定制整体组合洗衣柜及收纳柜,不仅美观大方,洗衣储物也更便利。



想要还原视觉一片清爽?电视背景采用行云流水板材上墙,黑白连贯的纹路感,弱化了电视的存在。



封闭式储物柜选择立面简洁的按压式设计,将满满当当的杂物全部收纳于无形之中,过道套框装饰柜满足日常装饰及常用物品放置。




利他优势
1.个性定制鞋柜
换鞋储物一气呵成

开门即是不太宽敞的走廊,定制整墙玄关柜+底部开放柜设计,再多的鞋子也不怕没地儿放。

中空位置加灯带增强空间感,没有空间打造换鞋区,做个换鞋凳从底部拉出,方便回家就让劳累了一天的自己充充电。



2.主卧一柜多用
2㎡卫生间塞下浴缸

主卧配色简单不失单调,整排的衣柜不仅储物惊人,也将中央空调面板加长,空间整体性更强。

电视柜延伸高低女梳妆台及开放式吊柜,满足女业主化妆品及护肤物品的存放,围合感很强。



2㎡主卫集马桶、洗漱、淋浴、浴缸于一身,墙面打造壁龛储物;

黑色的花洒更具质感,工作一天泡个澡,生活就是这么惬意。



3.儿童房书柜延伸衣柜
门后凿墙打造书柜区

儿童房对于孩子的成长来说,不仅要实用,还要颜值在线。

定制大容量衣柜,衣柜分区轻松拿取,从小养成收纳好习惯;镂空地柜,创意收纳,满足大物品存放。



房间软装根据定制家具进行搭配,海之蓝、鼹鼠灰营造明亮、活泼氛围感;

利用门体墙体厚度内嵌储物柜,收纳更清爽,避免磕碰更安心。





其它空间赏析




💝


谈起整个装修过程,业主表示整个过程非常省心:

“每一个节点要做什么,需要我怎么配合,监理和设计师都会提前联系通知,施工群也能实时看到进展,使用的材料也都是一开始选择好的品牌款式,不存在以次充好的情况,雅美居的整体家装定制一体化服务,让没有很多时间盯工地的我们省心省力”。


设计师与业主合影📷


∇案例没看够?
扫描下方二维码观看360全景效果


谁说装修一定得复杂造型,用昂贵材料?
一点一滴细细为长远生活的居住考量,处处有细节,满满皆是幸福感!